三条市は22日、3月定例会の提出議案概要説明会を開き、スポーツ・文化・交流複合施設の各工事や旧三条小学校解体工事の請負契約の締結など議案43件の概要を説明した。

3月1日召集の定例会の提出議案は、平成30年度の一般会計予算と特別会計予算8件、平成29年度の補正予算3件、人事案件2件、計画変更1件、条例の制定と一部改正16件、指定管理者の指定1件、工事請負契約の締結10件、専決処分報告2件の計43件。平成30年度予算は19日に説明しているので、説明を省略した。
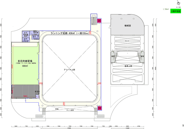
来年2019年12月のオープンを目指すスポーツ・文化・交流複合施設の工事請負契約の締結の関係では、建設本体工事契約の合計9件(43億6,482万円)のうちの7件を説明。いずれも工期は2019年10月31日。
このほかの工事請負契約は、旧三条小学校解体1件と新最終処分場2件。スポーツ・文化・交流複合施設の基本設計図とパースは次の通り。




